Prix
568 800€
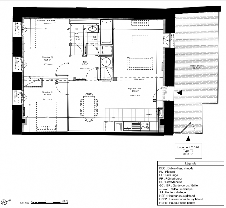
Type
Appt. au 0-RDC
Pièces
T3
Surface
69.8 m²
Exposition
-
Ville
Montgeron (91230)
Livraison
3ème trimestre 2026
Informations
01 81 80 39 10

Présentation du programme "Le Moulin De Senlis Df"

Sur les bords de l’Yerres, à deux pas du centre-ville de Montgeron dans le département de l’Essonne (91), se dresse le Moulin de Senlis, un ensemble de caractère, aux accents d’architecture baroque et néo-gothique. Riche d’une histoire de plus de 600 ans, le Moulin a déjà connu plusieurs vies : sa destinée originelle de moulin à farine, un lieu de villégiature pour une riche famille parisienne à la Belle Époque, puis un centre d’accueil et de culture pour la communauté slave. Aujourd’hui, le Moulin de Senlis ouvre un nouveau chapitre de son histoire. Pour répondre à la demande du marché immobilier de la ville et palier à la carence de logements de petites surfaces, les équipes d’Histoire & Patrimoine ont fait le choix d’aménager des appartements de petites typologies. Demain, cet ensemble sera aménagé en 25 appartements associant le charme l’ancien au confort du récent. Certains seront prolongés d’un espace extérieur (balcon ou terrasse) et quelques-uns organisés en duplex avec de belles hauteurs sous-plafond. Les locaux au rez-de-chaussée seront conservés par la Mairie.

Autres logements T3 du programme "Le Moulin De Senlis Df"

Disponibilité Prix Genre Pièces Surface Étage
Voir
Disponible
487 400€ Appt. T3 57.6m2 2ème
DO NOT CLICK