Prix
201 000€
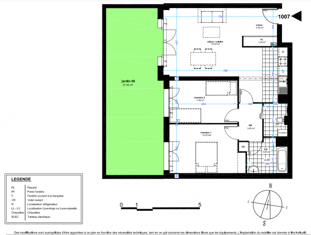
Type
Appt. au 0-RDC
Pièces
T2
Surface
48 m²
Exposition
Ouest
Ville
Amiens (80000)
Livraison
1er trimestre 2026
Informations
01 81 80 39 10

Présentation du programme "VILLA AGRIPPA"

L'emplacement de la VILLA AGRIPPA est idéal : vous êtes à mi-chemin entre ville et nature, au coeur du quartier prisé Saint-Fuscien.Tous les logements, du 2 au 4 pièces donnent sur un espace extérieur avec balcon, loggias ou rez-de-jardin. La résidence close et sécurisée, présente une façade sur rue qui est séquencée selon un rythme de cinq belles villas dans l'esprit et le style des architectures traditionnelles. La VILLA AGRIPPA est implantée dans un écrin de verdure au sein d'un parc paysager, lieu de vie idéal pour le quotidien.

Autres logements T2 du programme "VILLA AGRIPPA"

Pas de logements disponibles