Prix
118 700€
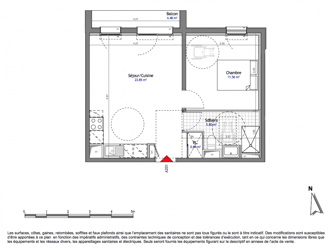
Type
Appt. au 2ème
Pièces
T2
Surface
42.05 m²
Exposition
Nord
Ville
Amiens (80000)
Livraison
3ème trimestre 2021
Informations
01 81 80 39 10

Présentation du programme "South Park - MS Hors Perl"

La résidence South Park sera construite à Amiens (180 000 habitants) dans le quartier chic et prisé d’Henriville. La résidence South Park sera située à deux pas du centre ville, du quartier historique à proximité immédiate de nombreuses écoles et commerces.
La résidence South Park comprendra quatre bâtiments au cœur d’un parc boisé.
Seuls cinq appartements sont proposés en démembrement sur les cent vingt six que comptera la résidence.

Paramètres techniques et financiers :
- La durée du démembrement sera de 15 ans
- La valorisation économique de la Nue Propriété sera de 62 % de la valeur de la pleine propriété
- 5 appartements de typologie T2 ou T3 sont proposés à la vente
- Tous les appartements bénéficieront d’un balcon ou d’une terrasse et d’un parking
- Réglementation thermique RT 2012
- Le prix moyen du mètre2 habitable en pleine propriété hors parking est de 4 349 €

Autres logements T2 du programme "South Park - MS Hors Perl"

Pas de logements disponibles