177 327€ (TVA 20%)
155 900€ (TVA 5.5%)
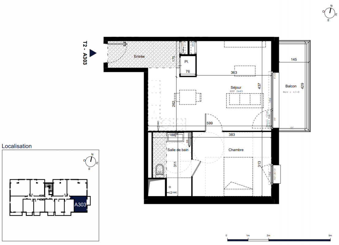
Appt. au 3ème
-
45.23 m²
-
Béthune (62400)
4ème trimestre 2028
01 81 80 39 10
Présentation du programme "EQUILIBRE"
Programme immobilier neuf à Béthune (62400) - Résidence Équilibre.
Frais de notaire offerts pour les 10 premiers réservataires.
Programme éligible au Prêt à Taux Zéro (PTZ), à la TVA réduite à 5,5 % et au statut LMNP.
Découvrez Équilibre, un nouveau programme immobilier neuf à Béthune, développé par Spirit Immobilier, composé de 40 appartements neufs du studio au 5 pièces. Située dans le quartier de l'Horlogerie, à seulement 5 minutes à pied de la gare de Béthune, la résidence bénéficie d'un emplacement central et recherché, idéal pour habiter ou investir.
Béthune séduit par son dynamisme, son centre-ville animé et son cadre de vie à taille humaine. L'adresse permet un accès rapide aux commerces, écoles, transports et services, tout en offrant un environnement résidentiel agréable et pratique au quotidien.
Des appartements neufs confortables et personnalisables : La résidence Équilibre se distingue par une architecture contemporaine et élégante, mettant en valeur des matériaux de qualité. Sécurisée, elle est équipée d'un visiophone pour garantir tranquillité et sérénité aux résidents.
Les appartements neufs, du studio au 5 pièces, proposent :
- des volumes généreux
- une belle luminosité naturelle
- des prestations soignées
Chaque logement est personnalisable selon vos envies : choix des teintes de parquet stratifié, des meubles de cuisine et des équipements de salle d'eau, pour créer un intérieur à votre image.
Les espaces extérieurs prolongent les lieux de vie avec :
- des balcons confortables
- de grandes terrasses pouvant atteindre jusqu'à 70 m²
Parfaits pour profiter de moments de détente ou recevoir en extérieur.
La résidence dispose également :
- d'un parking extérieur
- d'un local à vélos, pratique et sécurisé
Une opportunité idéale pour habiter ou investir à Béthune : Grâce à son emplacement stratégique à proximité immédiate de la gare de Béthune, du centre-ville et des bassins d'emploi, la résidence Équilibre constitue une opportunité attractive pour les investisseurs en LMNP, avec un rendement potentiel pouvant atteindre 6 %.
Les accédants à la propriété peuvent bénéficier :
- de la TVA réduite à 5,5 %
- du Prêt à Taux Zéro
- de remises exceptionnelles et des frais de notaire offerts pour faciliter leur projet immob
Autres logements - du programme "EQUILIBRE"
| Disponibilité | Prix | No | Genre | Pièces | Surface | Étage | Disponibilité | Prix | ||
|---|---|---|---|---|---|---|---|---|---|---|
| Voir | Disponible | 157 991€ | A101 | Appt. | - | 42.09m2 | 1er | Disponible | 157 991€ | Voir |
| Voir | Disponible | 171 640€ | A103 | Appt. | - | 45.23m2 | 1er | Disponible | 171 640€ | Voir |
| Voir | Disponible | 104 531€ | A104 | Appt. | - | 25.94m2 | 1er | Disponible | 104 531€ | Voir |
| Voir | Disponible | 104 531€ | A106 | Appt. | - | 26.54m2 | 1er | Disponible | 104 531€ | Voir |
| Voir | Disponible | 112 493€ | A107 | Appt. | - | 28.87m2 | 1er | Disponible | 112 493€ | Voir |
| Voir | Disponible | 112 493€ | A108 | Appt. | - | 28.32m2 | 1er | Disponible | 112 493€ | Voir |
| Voir | Disponible | 176 190€ | A109 | Appt. | - | 45.82m2 | 1er | Disponible | 176 190€ | Voir |
| Voir | Disponible | 230 787€ | A110 | Appt. | - | 63.44m2 | 1er | Disponible | 230 787€ | Voir |
| Voir | Disponible | 161 403€ | A201 | Appt. | - | 42.09m2 | 2ème | Disponible | 161 403€ | Voir |
| Voir | Disponible | 234 199€ | A202 | Appt. | - | 63.09m2 | 2ème | Disponible | 234 199€ | Voir |
| Voir | Disponible | 175 052€ | A203 | Appt. | - | 45.23m2 | 2ème | Disponible | 175 052€ | Voir |
| Voir | Disponible | 107 943€ | A204 | Appt. | - | 25.94m2 | 2ème | Disponible | 107 943€ | Voir |
| Voir | Disponible | 102 256€ | A205 | Appt. | - | 25.12m2 | 2ème | Disponible | 102 256€ | Voir |
| Voir | Disponible | 107 943€ | A206 | Appt. | - | 26.54m2 | 2ème | Disponible | 107 943€ | Voir |
| Voir | Disponible | 115 905€ | A207 | Appt. | - | 28.87m2 | 2ème | Disponible | 115 905€ | Voir |
| Voir | Disponible | 115 905€ | A208 | Appt. | - | 28.32m2 | 2ème | Disponible | 115 905€ | Voir |
| Voir | Disponible | 179 602€ | A209 | Appt. | - | 45.82m2 | 2ème | Disponible | 179 602€ | Voir |
| Voir | Disponible | 236 474€ | A210 | Appt. | - | 63.46m2 | 2ème | Disponible | 236 474€ | Voir |
| Voir | Disponible | 156 853€ | A211 | Appt. | - | 42.54m2 | 2ème | Disponible | 156 853€ | Voir |
| Voir | Disponible | 164 815€ | A301 | Appt. | - | 42.09m2 | 3ème | Disponible | 164 815€ | Voir |
| Voir | Disponible | 238 749€ | A302 | Appt. | - | 63.09m2 | 3ème | Disponible | 238 749€ | Voir |
| Voir | Disponible | 111 355€ | A304 | Appt. | - | 25.94m2 | 3ème | Disponible | 111 355€ | Voir |
| Voir | Disponible | 105 668€ | A305 | Appt. | - | 25.12m2 | 3ème | Disponible | 105 668€ | Voir |
| Voir | Disponible | 111 355€ | A306 | Appt. | - | 26.54m2 | 3ème | Disponible | 111 355€ | Voir |
| Voir | Disponible | 119 318€ | A307 | Appt. | - | 28.87m2 | 3ème | Disponible | 119 318€ | Voir |
| Voir | Disponible | 119 318€ | A308 | Appt. | - | 28.32m2 | 3ème | Disponible | 119 318€ | Voir |
| Voir | Disponible | 181 877€ | A309 | Appt. | - | 45.82m2 | 3ème | Disponible | 181 877€ | Voir |
| Voir | Disponible | 241 024€ | A310 | Appt. | - | 63.46m2 | 3ème | Disponible | 241 024€ | Voir |
| Voir | Disponible | 160 265€ | A311 | Appt. | - | 42.54m2 | 3ème | Disponible | 160 265€ | Voir |
| Voir | Disponible | 305 858€ | A401 | Appt. | - | 89.21m2 | 4ème | Disponible | 305 858€ | Voir |
| Voir | Disponible | 299 033€ | A402 | Appt. | - | 90.68m2 | 4ème | Disponible | 299 033€ | Voir |
| Voir | Disponible | 304 720€ | A403 | Appt. | - | 87.53m2 | 4ème | Disponible | 304 720€ | Voir |
| Voir | Disponible | 250 123€ | A404 | Appt. | - | 63.01m2 | 4ème | Disponible | 250 123€ | Voir |
| Voir | Disponible | 163 678€ | A405 | Appt. | - | 42.54m2 | 4ème | Disponible | 163 678€ | Voir |
| Voir | Disponible | 288 796€ | A502 | Appt. | - | 90.68m2 | 5ème | Disponible | 288 796€ | Voir |
| Voir | Disponible | 293 346€ | A503 | Appt. | - | 87.53m2 | 5ème | Disponible | 293 346€ | Voir |
| Voir | Disponible | 253 536€ | A504 | Appt. | - | 63.01m2 | 5ème | Disponible | 253 536€ | Voir |
| Voir | Disponible | 167 090€ | A505 | Appt. | - | 42.54m2 | 5ème | Disponible | 167 090€ | Voir |
| Voir | Disponible | 412 777€ | A602 | Appt. | - | 121.76m2 Le bon plan | 6ème | Disponible | 412 777€ | Voir |
| Voir | Disponible | 226 237€ | A102 | Appt. | - | 63.07m2 | 1er | Disponible | 226 237€ | Voir |
| Voir | Disponible | 147 754€ | A111 | Appt. | - | 42.54m2 | 1er | Disponible | 147 754€ | Voir |
| Voir | Disponible | 284 246€ | A501 | Appt. | - | 89.21m2 | 5ème | Disponible | 284 246€ | Voir |
| Voir | Disponible | 368 417€ | A601 | Appt. | - | 109.78m2 | 6ème | Disponible | 368 417€ | Voir |
| Voir | Disponible | 96 569€ | A105 | Appt. | - | 25.12m2 | 1er | Disponible | 96 569€ | Voir |