Prix
435 000€
435 000€
Type
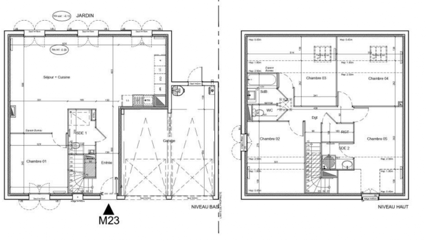
Maison au 0-RDC
Maison au 0-RDC
Pièces
T6
T6
Surface
118.16 m²
118.16 m²
Exposition
Sud
Sud
Ville
Plailly (60128)
Plailly (60128)
Livraison
1er trimestre 2027
1er trimestre 2027
Informations
01 81 80 39 10
01 81 80 39 10
Présentation du programme "LE HAMEAU DU VERGER"
De belles maisons familiales individuelles de 3 ou 4 chambres offrant jusqu’à 120 m² de surface habitable et dont le séjour se prolonge sur un jardin privatif arboré et protégé des regards par de haies végétales. Avec cette nouvelle adresse à Plailly, Vianova propose un cadre privilégié, pensé pour le bonheur des familles. Les maisons invitent à un quotidien doux et feutré, conjuguant cadre verdoyant et proximité avec des pôles économiques. Un lieu de vie idéal assorti d’un beau potentiel de valorisation, à seulement 40 min de Paris par le RER D via la gare de Survilliers-Fosses.

