317 000€
Maison au 0-RDC
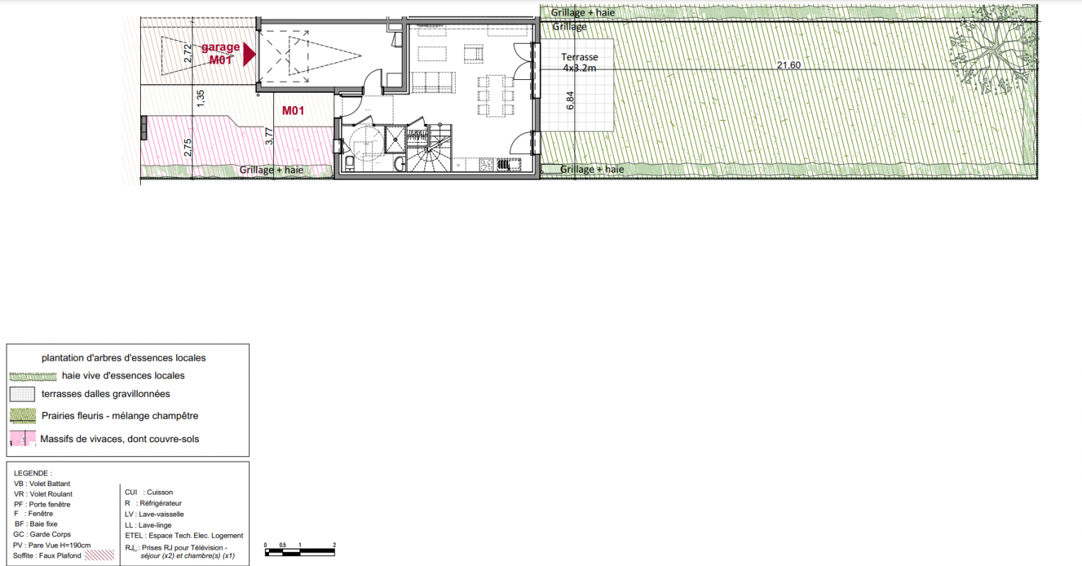
T5
96.57 m²
Est
Margny-lès-Compiègne (60280)
4ème trimestre 2027
01 81 80 39 10
Présentation du programme "Le Clos Venette"
LANCEMENT COMMERCIAL À VENETTE – CUISINE AMÉNAGÉE + FRAIS DE NOTAIRE OFFERTS* !
Découvrez Le Clos Venette, une nouvelle résidence idéalement située Avenue Simone Veil à Venette, à seulement 3 minutes du centre-ville de Compiègne. Profitez d'un cadre de vie paisible et verdoyant, entre ville et nature, tout en restant proche des commerces, écoles et services du quotidien.
Appartements du studio au 4 pièces avec balcon, terrasse ou jardin privatif, ou maisons de ville avec jardin et 3 ou 4 chambres : trouvez le logement qui vous ressemble, conçu pour le confort, la luminosité et la qualité de vie.
Que vous soyez primo-accédant, jeune couple, famille ou retraité, Le Clos Venette offre un environnement idéal pour vivre ou investir dans un quartier à taille humaine.
Éligible au Prêt à Taux Zéro, ce programme est une opportunité unique d'accéder à la propriété dans un logement neuf, moderne et économe en énergie.
Contactez-nous dès aujourd'hui pour découvrir nos offres de lancement et profiter de la cuisine aménagée et des frais de notaire offerts !
*Frais de notaire offerts pour les 5 prochaines réservations sous la réserve de la signature d'un contrat de réservation jusqu'au 31 octobre 2025. Offre de prise en charge du prix de la cuisine, selon notre catalogue d'aménagement au 01/05/2025. Cette prise en charge consiste en une réduction du prix de vente du logement de 2 500 € pour les T1 3 900 € pour un T2 ou T3 et 4 100 € pour un T4 ou T5 pour les 5 prochains réservataires.
Autres logements T5 du programme "Le Clos Venette"
| Disponibilité | Prix | No | Genre | Pièces | Surface | Étage | Disponibilité | Prix | ||
|---|---|---|---|---|---|---|---|---|---|---|
| Voir | Disponible | 305 000€ | M02 | Maison | T5 | 96.21m2 | 0-RDC | Disponible | 305 000€ | Voir |
| Voir | Disponible | 300 000€ | M06 | Maison | T5 | 96.56m2 | 0-RDC | Disponible | 300 000€ | Voir |
| Voir | Disponible | 309 000€ | M07 | Maison | T5 | 96.2m2 | 0-RDC | Disponible | 309 000€ | Voir |

