Prix
396 150€
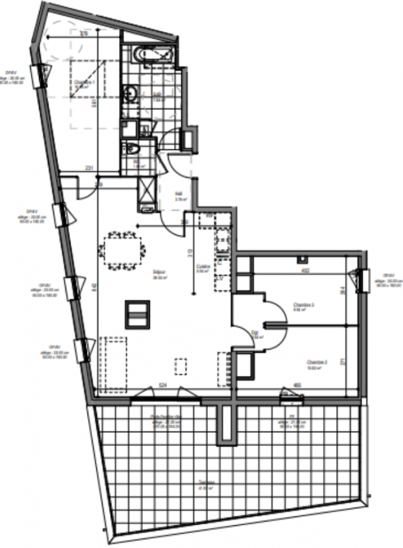
Type
Appt. au 5ème
Pièces
T4
Surface
97.46 m²
Exposition
Sud-Ouest
Ville
Haubourdin (59320)
Livraison
3ème trimestre 2024
Informations
01 81 80 39 10

Présentation du programme "Rive Gauche"

AUX PORTES DE LILLE, 79 appartements du T2 au T4 avec chacun un extérieur : jardin, balcon ou terrasse. [ +50 % déjà réservés, faites vite ! ] Exemples donnés de prix pour chaque typologie, parking inclus. Voir stock complet en nous contactant. Haubourdin offre un cadre de vie unique à ses 15 000 habitants en alliant toutes les commodités urbaines au coeur d'une nature préservée. Riche de ses commerces et services, de sa vie associative et culturelle ainsi que de ses infrastructures sportives, elle demeure une ville particulièrement animée.
>>>>LE PROGRAMME EN QUELQUES MOTS :
>> Dans un rayon de 500 m, de nombreuses commodités vous promettent un quotidien confortable: arrêts de bus, boulangeries, un buraliste, supermarchés, pharmacies, écoles, un collège... Et également le centre-ville ! Il vous offrira tous les commerces et services nécessaires. Ce cadre privilégié n'attend plus que vous !
>>Chacun pourra profiter d'un logement ouvert sur l'extérieur : jardin privatif, balcon ou terrasse. Les derniers niveaux sont réalisés en attique, offrant ainsi des terrasses généreuses.

Autres logements T4 du programme "Rive Gauche"

Pas de logements disponibles