Prix
253 638€
Type
Appt. au 1er
Pièces
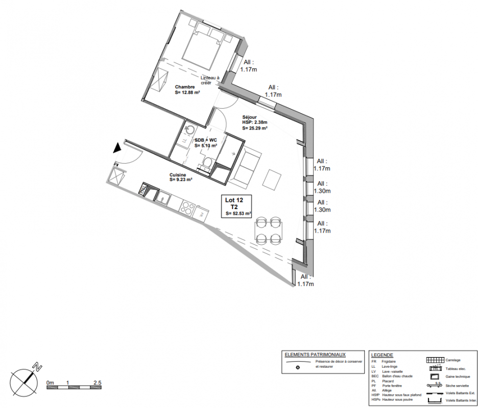
T2
Surface
52.53 m²
Exposition
-
Ville
Douai (59500)
Livraison
3ème trimestre 2027
Informations
01 81 80 39 10

Présentation du programme "Le Moulin Des Augustins"

Investissez à Douai, à seulement 35 minutes de LilleUne ville au riche patrimoine historique et culturel : Douai, surnommée la « Venise du Nord », est une ville traversée par le canal de la Scarpe, offrant une ambiance pittoresque similaire à Bruges.La ville abrite de nombreux monuments classés tels que le beffroi et l’Hôtel de Ville, témoignant de son histoire. Un dynamisme économique remarquableUn centre d’innovation et de croissance : la ville voit l’implantation de grandes entreprises dans les secteurs de l’automobile, de la logistique, et de l’agro-alimentaire. Les investissements massifs dans des infrastructures comme la Gigafactory d’Envision renforcent le développement local et la demande locative.Un potentiel locatif élevé : Douai attire de plus en plus d'habitants en raison de son dynamisme économique et de sa proximité avec Lille et Paris, en faisant une zone propice à l'investissement locatif.Attractivité pour les jeunes actifs et étudiants : avec 41 % de la population âgée de moins de 29 ans, Douai séduit de plus en plus de jeunes couples et étudiants grâce à ses opportunités d'emploi et ses établissements d'enseignement. Commodités et transportsÀ proximité immédiate du centre-ville qui offre un large éventail de commerces, de restaurants, et de services. Les établissements scolaires, les parcs, et les équipements de loisirs sont également facilement accessibles.Douai est idéalement située, avec une gare TGV reliant Paris en 1h09 et Lille en seulement 20 minutes. La ville est bien desservie par les autoroutes A1 et A21, facilitant l’accès à des villes comme Bruxelles et Valenciennes. Focus prestations/résidenceUne réhabilitation haut de gamme : Le Moulin Des Augustins se distingue par son architecture industrielle du XIXe siècle soigneusement restaurée.Les appartements offrent des parquets en bois, des menuiseries en aluminium et des équipements haut de gamme dans les cuisines et salles de bains.Une vue imprenable sur le canal et la promenade adjacente ajoute un charme unique au cadre de vie. Le + du programmeUn patrimoine unique : Le Moulin Des Augustins, situé à seulement 300 mètres du beffroi classé, incarne l’alliance parfaite entre histoire et modernité. Sa restauration sous le contrôle des Architectes des Bâtiments de France assure une qualité architecturale exceptionnelle tout en répondant aux besoins contemporains des résidents.

Autres logements T2 du programme "Le Moulin Des Augustins"

Disponibilité Prix Genre Pièces Surface Étage
Voir
Disponible
242 828€ Appt. T2 50.18m2 0-RDC
DO NOT CLICK