Prix
187 320€
187 320€
Type
Appt. au 3ème
Appt. au 3ème
Pièces
T2
T2
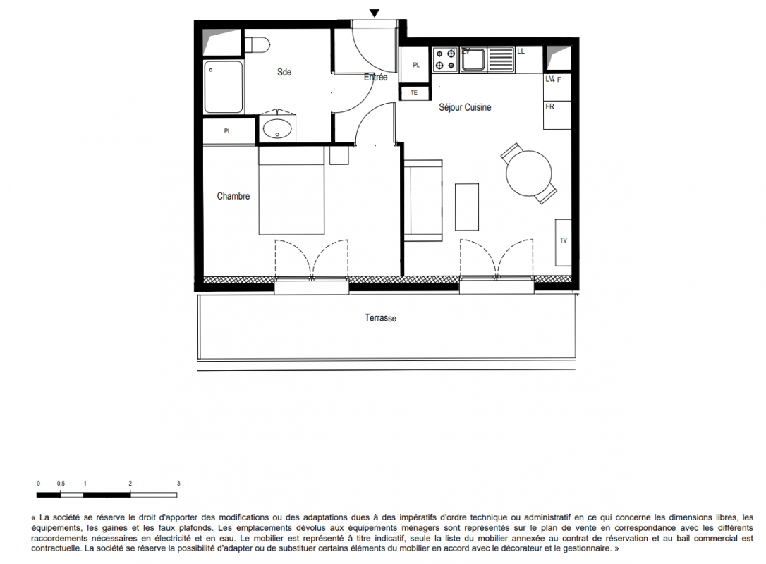
Surface
38.6 m²
38.6 m²
Exposition
Est
Est
Ville
Soissons (02200)
Soissons (02200)
Livraison
3ème trimestre 2026
3ème trimestre 2026
Informations
01 81 80 39 10
01 81 80 39 10
Présentation du programme "CLOS VITA"
La résidence seniors Clos Vita, s’intègre parfaitement dans son environnement par son architecture moderne et élégante. Composée de 115 appartements du T1 au T3, elle propose des espaces de vie chaleureux, notamment une belle terrasse commune en rooftop. À l’extérieur, des espaces verts aménagés permettent de profiter de chemins de promenade, d’un jardin potager partagé ou encore d’un terrain de pétanque, le tout dans un esprit de partage et de convivialité. À l’intérieur, plus de 200 m² d’espaces communsfavorisent le lien social. Les résidents ont ainsi à leur disposition un salon, une cuisine collaborative, une salle de fitness, un salon de coiffure et de beauté et une salle de télémédecine.
Autres logements T2 du programme "CLOS VITA"
| Disponibilité | Prix | No | Genre | Pièces | Surface | Étage | Disponibilité | Prix | ||
|---|---|---|---|---|---|---|---|---|---|---|
| Voir | Optionné | 185 040€ | B2.01 | Appt. | T2 | 40m2 | 2ème | Optionné Mais pas encore vendu 😉 | 185 040€ | Voir |
| Voir | Disponible | 186 240€ | B2.20 | Appt. | T2 | 40m2 | 2ème | Disponible | 186 240€ | Voir |
| Voir | Optionné | 185 040€ | B2.06 | Appt. | T2 | 40m2 | 2ème | Optionné Mais pas encore vendu 😉 | 185 040€ | Voir |