Ce lot n’est plus disponible chez VIANOVA ou est vendu.

Vous pouvez revenir dans 24h pour vérifier le stock à jour ou contacter un conseiller Vianova pour vérifier le stock en direct.
Vous pouvez également continuer votre recherche sur notre site « ici ».

Prix
706 000€
Type
Appt. au 2ème
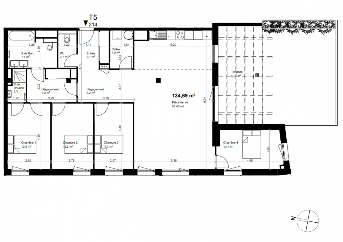
Pièces
T5
Surface
132.45 m²
Exposition
-
Ville
Reims (51100)
Livraison
4ème trimestre 2027
Informations
01 81 80 39 10

Présentation du programme "Renaissance - REIMS"

A quelques minutes du centre historique de Reims, au coeur du quartier Saint-André. la résidence Renaissance donne une nouvelle vie à l'ancienne maternité . Découvrez 40 appartements neufs du 2 au 5 pièces aux surfaces généreuses avec balcon, jardin ou terrasse offrant des vues sur les toits de Reims. Profitez d'une qualité de vie remarquable en habitant une rue calme mais avec tous les commerces, transports ( gare dessert Paris en 45 minutes), écoles et restaurants accessibles en quelques minutes à pied. Eligible Pinel. Une copromotion Nacarat et Metin.Y.

Autres logements T5 du programme "Renaissance - REIMS"

Disponibilité Prix Genre Pièces Surface Étage
Voir
Archivé
610 000€ Appt. T5 105.28m2 3ème
DO NOT CLICK