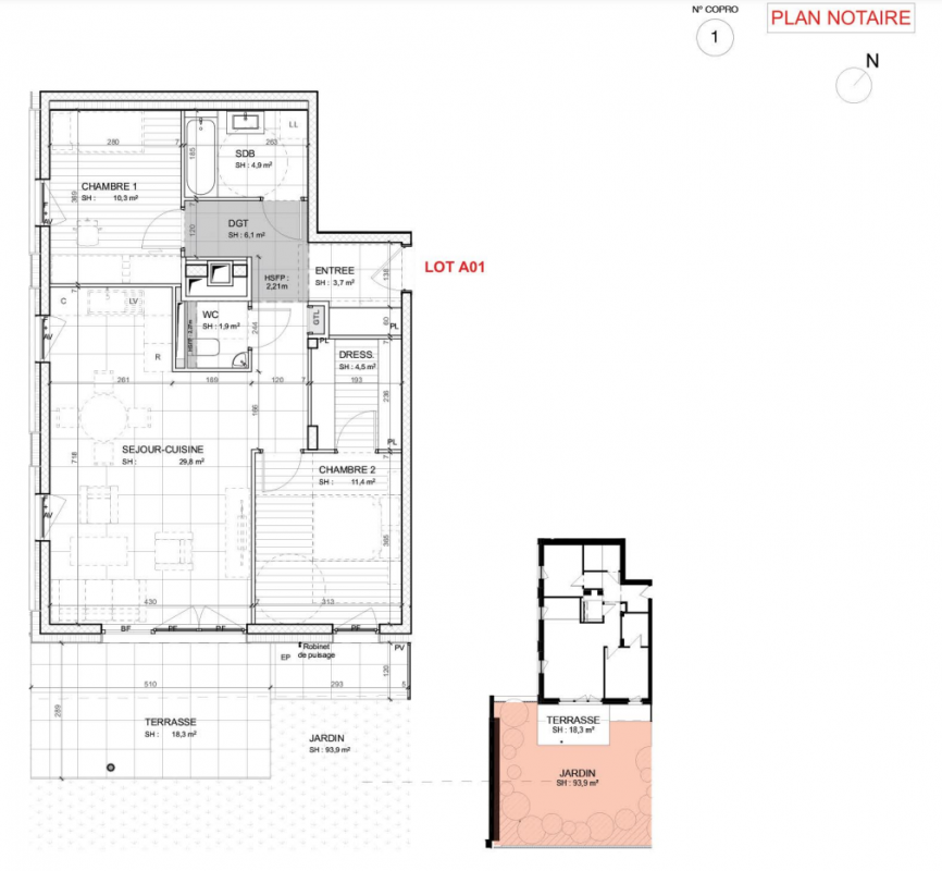
259 000€
Appt. au 0-RDC
T3
72.6 m²
-
Mulhouse (68100)
3ème trimestre 2025
01 81 80 39 10
Présentation du programme "E[A]ST OPERA"
FRAIS DE NOTAIRE OFFERTS + CUISINE AMÉNAGÉE OFFERTE !*Visitez votre futur appartement d'exception dans une résidence haut-de-gamme, intimiste et contemporaine, située face au canal, à quelques minutes à pied de la gare, du centre-ville et de toutes les commodités - APPARTEMENT TÉMOIN VISITABLE SUR RDV. Derniers grands appartements T3, T4 et T5 avec de très beaux espaces extérieurs (jusqu'à 111 m² !) face au canal !Ici, bénéficiez d'un confort sur-mesure et de prestations haut-de-gamme pour votre futur chez-vous : chauffage au sol, carrelage grand format, parquet contrecollé, WC suspendus, volet roulants électriques, caves et stationnements pour l'ensemble des logements, espaces extérieurs généreux !*Voir conditions sur notre site eastmulhouse.alsace