Prix
351 500€
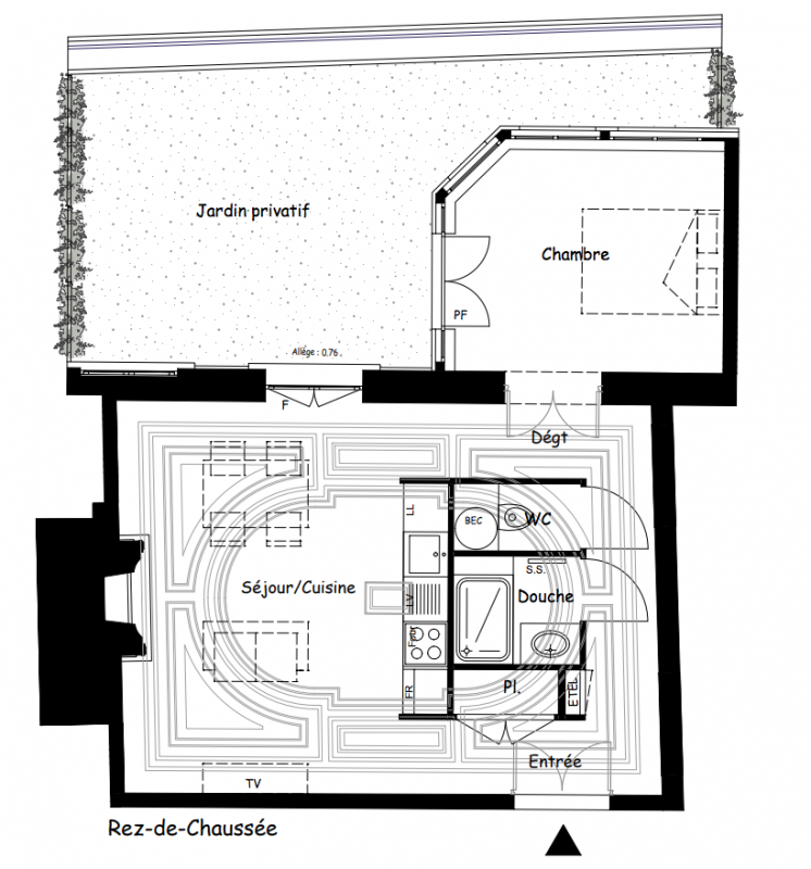
Type
Appt. au 0-RDC
Pièces
T2
Surface
47.15 m²
Exposition
Sud
Ville
Troyes (10000)
Livraison
3ème trimestre 2027
Informations
01 81 80 39 10

Présentation du programme "Hélianthe"

Investissez à Troyes : un cadre de vie remarquable au cœur d’un territoire attractifVille au riche passé historique, Troyes séduit par son patrimoine architectural, sa gastronomie et son ambiance authentique.Labellisée "Ville et Pays d’Art et d’Histoire", elle offre un cadre de vie unique entre culture, nature et qualité de vie.Dotée de 150 hectares d’espaces verts en centre-ville et sélectionnée dans le plan "Action Cœur de Ville", Troyes affiche un fort potentiel de valorisation. Une ville dynamique au fort potentiel locatif174 000 habitants dont 12 000 étudiants : une métropole jeune, active et en demande de logements.Capitale européenne des magasins d’usine avec 5 millions de visiteurs par an, 200 boutiques outlet et près de 500 marques.11 000 entreprises, 2ème producteur mondial de champagne : une économie diversifiée et attractive. Commodités & transportsÀ 15 min à pied de la gare SNCF de Troyes (16 A/R quotidiens vers Paris, 1h30) et accès rapide aux autoroutes A5 et A26.Environnement central avec toutes les commodités : commerces, marché des Halles, campus universitaire, équipements culturels.Centre-ville accessible à pied, cadre de vie alliant praticité urbaine et charme historique. Focus prestations/résidenceRésidence intimiste proposant des appartements du T1 au T3, avec caves, parkings et local vélos.Restauration haut de gamme : parquets en chêne, cheminées en marbre, moulures, cuisine et SDB aménagées sur mesure.Sécurité, confort et connectivité : visiophone, fibre, matériaux nobles, prestations patrimoniales de grande qualité. Le + du programme Une adresse d’exception dans un hôtel particulier du XVIII¿ siècle, aux pieds de la cathédrale Saint-Pierre-Saint-Paul.

Autres logements T2 du programme "Hélianthe"

Disponibilité Prix Genre Pièces Surface Étage
Voir
Disponible
269 500€ Appt. T2 40.55m2 0-RDC
Voir
Disponible
309 500€ Appt. T2 45.6m2 1er
Voir
Disponible
353 500€ Appt. T2 48.54m2 0-RDC