Prix
307 500€
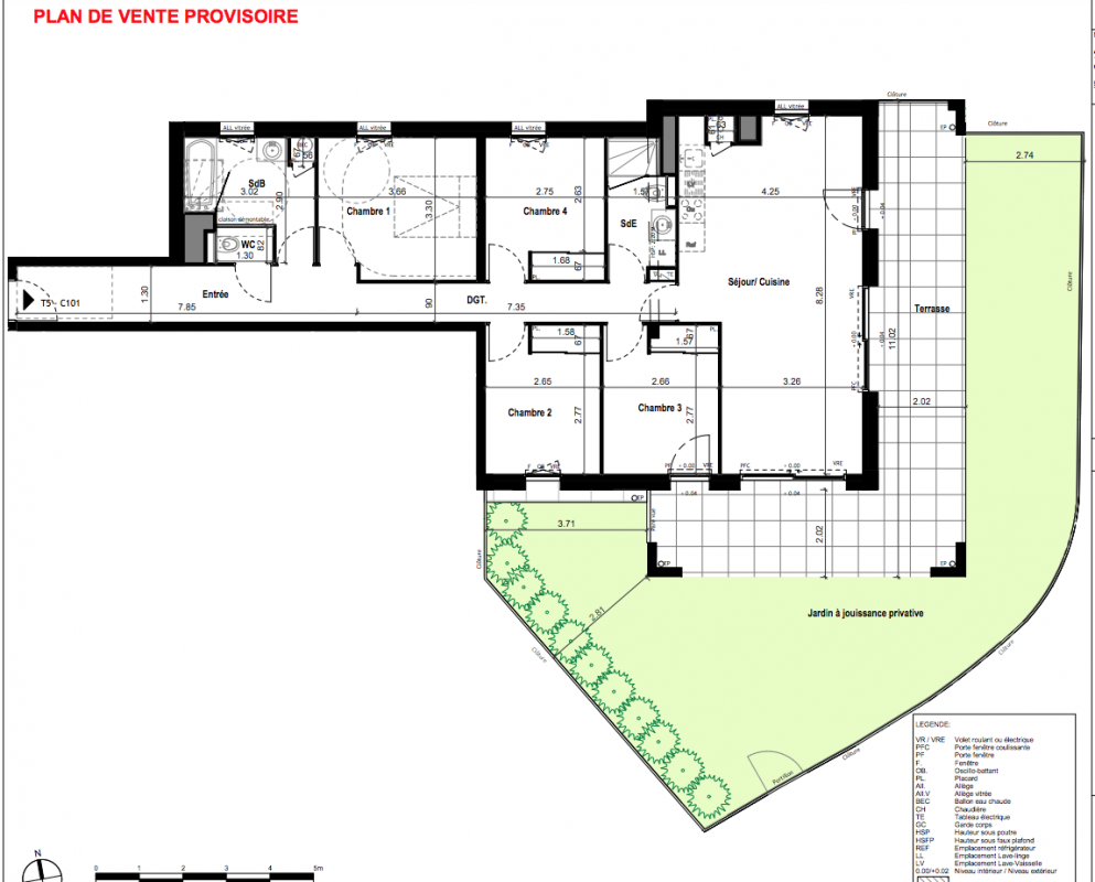
Type
Appt. au 1er
Pièces
T5
Surface
99.01 m²
Exposition
-
Ville
Vitré (35500)
Livraison
1er trimestre 2026
Informations
01 81 80 39 10

Présentation du programme "EN SCENE"

Programme neuf EN SCENE à Vitré - 35500. Renseignez-vous dès maintenant ! Pour toutes informations complémentaires, prenez contact avec nous !

Autres logements T5 du programme "EN SCENE"

Disponibilité Prix Genre Pièces Surface Étage
Voir
Disponible
315 833€ Appt. T5 99.01m2 2ème
Voir
Disponible
340 833€ Appt. T5 98.88m2 3ème
DO NOT CLICK