Prix
272 000€
Type
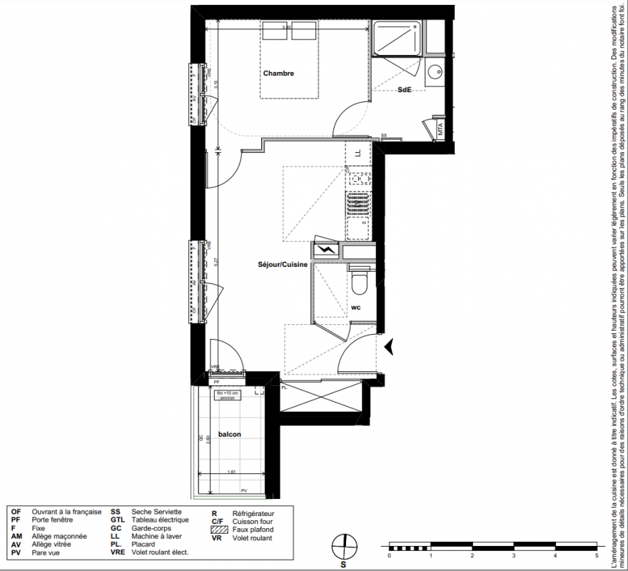
Appt. au 6ème
Pièces
T2
Surface
39.84 m²
Exposition
-
Ville
Rennes (35000)
Livraison
1er trimestre 2028
Informations
01 81 80 39 10

Présentation du programme "THE LINE"

[ - LANCEMENT // OFFRE EXCLUSIVE - ] DEVENEZ PROPRIÉTAIRE GRÂCE À IMMOSTART*

Découvrez les 7 appartements neufs de la résidence THE LINE à RENNES, du 2 au 3 pièces.

Située rue de l’Alma, dans un environnement calme à quelques pas du centre-ville et à proximité immédiate des stations de métro Jacques Cartier et Clémenceau, THE LINE séduit par son caractère intimiste et son emplacement privilégié. Son architecture contemporaine aux lignes épurées s’intègre avec élégance dans le paysage urbain rennais, offrant un cadre de vie moderne, harmonieux et confidentiel.

Composée de 7 appartements seulement, du 2 au 3 pièces, la résidence se distingue par ses agencements soignés, ses volumes lumineux et ses espaces extérieurs privatifs (terrasse, balcon ou loggia). Chaque logement bénéficie de prestations de qualité, pensées pour le confort et le bien-être de ses résidents.

Implantée dans un quartier vivant et connecté, la résidence permet de tout faire à pied ou à vélo : commerces, écoles, université, hôpital, équipements sportifs, sans oublier les espaces verts emblématiques de Rennes tels que le Parc du Thabor ou les Prairies Saint-Martin.

Contactez nos conseillers Lamotte à Rennes, ou rendez-vous sur Vianova.fr, pour en savoir plus et profiter de cette adresse rare alliant intimité, confort et centralité.


*Voir conditions de l'offre sur le site Lamotte.fr

Autres logements T2 du programme "THE LINE"

Disponibilité Prix Genre Pièces Surface Étage
Voir
Disponible
260 000€ Appt. T2 39.93m2 4ème
Voir
Disponible
265 000€ Appt. T2 39.93m2 5ème
DO NOT CLICK