155 844€
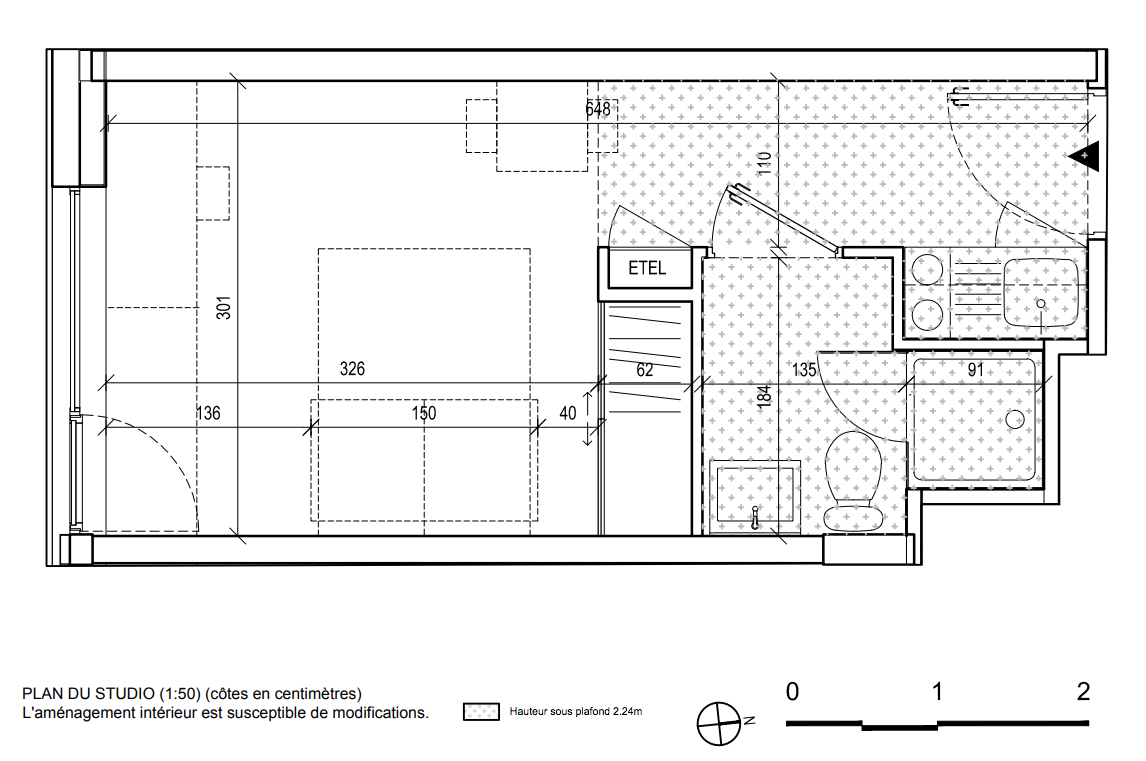
Appt. au 7ème
Studio
18.6 m²
Sud
Rennes (35000)
1er trimestre 2024
01 81 80 39 10
Présentation du programme "Campus Créatif 5 - 2"
Investissez à Rennes, une ville qui offre un cadre de vie exceptionnelVille d’histoire et d’innovation : labellisée Ville d’Art et d’Histoire, Rennes allie un riche patrimoine médiéval (maisons à colombages, centre historique) à un développement urbain moderne et durable.De nombreux espaces verts tels que le parc Thabor, un des plus beaux de France, et les berges de la Vilaine pour les balades et activités sportives.Une vie culturelle riche avec des théâtres, musées, festivals, et centres artistiques.Rennes est régulièrement citée parmi les villes les plus agréables à vivre grâce à son accessibilité, son ambiance conviviale et son équilibre entre nature et urbanisme. Rennes, une ville étudiante et attractiveRennes, ville universitaire française avec 70 000 étudiants représentant 25% de la population, est une destination idéale pour un investissement locatif étudiant.Pôle technologique et d’innovation, Rennes bénéficie d’un dynamisme économique qui attire étudiants, familles et jeunes actifs.Un marché locatif en forte demande : la combinaison d’une population étudiante croissante et d’une offre de logements moderne et adaptée assure un taux de remplissage optimal. Commodités et transportsLa résidence se situe dans un quartier prisé, à quelques minutes à pied du centre historique et des grands espaces verts comme le parc Thabor.À proximité immédiate des commerces de quartier, des centres commerciaux et des nombreux restaurants et cafés qui animent la ville.Réseau du bus STAR et lignes A et B du métro facilement accessibles à pied et permettant de se rendre rapidement dans les principaux quartiers et périphéries de Rennes. Focus prestations/résidenceDes appartements clé en main : entièrement équipés pour un confort optimal (kitchenette, salle d’eau aménagée, espace bureau, rangements et télévision).Des espaces communs de qualité : cafétéria, salles de travail, salle de fitness, rooftop et espaces verts.Une conception éco-responsable : toit végétalisé pour favoriser la biodiversité, connexion au chauffage urbain pour réduire l’empreinte carbone et des panneaux photovoltaïques pour une gestion énergétique durable. Le + du programmeUne localisation stratégique : située dans le quartier prisé de Solférino, à proximité immédiate des écoles ESMA et CinéCréatis, offrant un environnement idéal pour les étudiants. Découvrez la vidéo du programme ici
Autres logements Studio du programme "Campus Créatif 5 - 2"
| Disponibilité | Prix | No | Genre | Pièces | Surface | Étage | Disponibilité | Prix | ||
|---|---|---|---|---|---|---|---|---|---|---|
| Voir | Disponible  |  150 540€ | C204 | Appt. | Studio | 18.6m2 | 2ème |   Disponible   |  150 540€ | Voir | 
| Voir | Disponible  |  151 164€ | C310 | Appt. | Studio | 18.6m2 | 3ème |   Disponible   |  151 164€ | Voir | 
| Voir | Disponible  |  151 164€ | C119 | Appt. | Studio | 18.6m2 | 1er |   Disponible   |  151 164€ | Voir | 
| Voir | Disponible  |  151 788€ | C404 | Appt. | Studio | 18.6m2 | 4ème |   Disponible   |  151 788€ | Voir | 
| Voir | Disponible  |  152 724€ | C510 | Appt. | Studio | 18.6m2 | 5ème |   Disponible   |  152 724€ | Voir | 
| Voir | Disponible  |  152 724€ | C321 | Appt. | Studio | 18.6m2 | 3ème |   Disponible   |  152 724€ | Voir | 
| Voir | Disponible  |  152 724€ | C319 | Appt. | Studio | 18.6m2 | 3ème |   Disponible   |  152 724€ | Voir | 
| Voir | Disponible  |  152 724€ | C315 | Appt. | Studio | 18.6m2 | 3ème |   Disponible   |  152 724€ | Voir | 
| Voir | Disponible  |  153 348€ | C608 | Appt. | Studio | 18.6m2 | 6ème |   Disponible   |  153 348€ | Voir | 
| Voir | Disponible  |  153 348€ | C607 | Appt. | Studio | 18.6m2 | 6ème |   Disponible   |  153 348€ | Voir | 
| Voir | Disponible  |  153 348€ | C606 | Appt. | Studio | 18.6m2 | 6ème |   Disponible   |  153 348€ | Voir | 
| Voir | Disponible  |  153 348€ | C604 | Appt. | Studio | 18.6m2 | 6ème |   Disponible   |  153 348€ | Voir | 
| Voir | Disponible  |  153 348€ | C603 | Appt. | Studio | 18.6m2 | 6ème |   Disponible   |  153 348€ | Voir | 
| Voir | Disponible  |  153 348€ | C512 | Appt. | Studio | 18.7m2 | 5ème |   Disponible   |  153 348€ | Voir | 
| Voir | Disponible  |  153 348€ | C426 | Appt. | Studio | 18.6m2 | 4ème |   Disponible   |  153 348€ | Voir | 
| Voir | Disponible  |  153 348€ | C424 | Appt. | Studio | 18.6m2 | 4ème |   Disponible   |  153 348€ | Voir | 
| Voir | Disponible  |  154 284€ | C711 | Appt. | Studio | 18.6m2 | 7ème |   Disponible   |  154 284€ | Voir | 
| Voir | Disponible  |  154 284€ | C710 | Appt. | Studio | 18.6m2 | 7ème |   Disponible   |  154 284€ | Voir | 
| Voir | Disponible  |  154 284€ | C709 | Appt. | Studio | 18.6m2 | 7ème |   Disponible   |  154 284€ | Voir | 
| Voir | Disponible  |  154 284€ | C518 | Appt. | Studio | 18.6m2 | 5ème |   Disponible   |  154 284€ | Voir | 
| Voir | Disponible  |  154 284€ | C517 | Appt. | Studio | 18.6m2 | 5ème |   Disponible   |  154 284€ | Voir | 
| Voir | Disponible  |  154 284€ | C516 | Appt. | Studio | 18.6m2 | 5ème |   Disponible   |  154 284€ | Voir | 
| Voir | Disponible  |  154 284€ | C515 | Appt. | Studio | 18.6m2 | 5ème |   Disponible   |  154 284€ | Voir | 
| Voir | Disponible  |  154 908€ | C712 | Appt. | Studio | 18.7m2 | 7ème |   Disponible   |  154 908€ | Voir | 
| Voir | Disponible  |  155 532€ | C911 | Appt. | Studio | 18.6m2 | 9ème |   Disponible   |  155 532€ | Voir | 
| Voir | Disponible  |  155 532€ | C908 | Appt. | Studio | 18.6m2 | 9ème |   Disponible   |  155 532€ | Voir | 
| Voir | Disponible  |  155 844€ | C721 | Appt. | Studio | 18.6m2 | 7ème |   Disponible   |  155 844€ | Voir | 
| Voir | Disponible  |  155 844€ | C719 | Appt. | Studio | 18.6m2 | 7ème |   Disponible   |  155 844€ | Voir | 
| Voir | Disponible  |  155 844€ | C718 | Appt. | Studio | 18.6m2 | 7ème |   Disponible   |  155 844€ | Voir | 
| Voir | Disponible  |  155 844€ | C717 | Appt. | Studio | 18.6m2 | 7ème |   Disponible   |  155 844€ | Voir | 
| Voir | Disponible  |  155 844€ | C716 | Appt. | Studio | 18.6m2 | 7ème |   Disponible   |  155 844€ | Voir | 
| Voir | Disponible  |  156 468€ | C912 | Appt. | Studio | 18.7m2 | 9ème |   Disponible   |  156 468€ | Voir | 
| Voir | Disponible  |  157 092€ | C1110 | Appt. | Studio | 18.6m2 | 11ème |   Disponible   |  157 092€ | Voir | 
| Voir | Disponible  |  157 092€ | C1109 | Appt. | Studio | 18.6m2 | 11ème |   Disponible   |  157 092€ | Voir | 
| Voir | Disponible  |  157 092€ | C1107 | Appt. | Studio | 18.6m2 | 11ème |   Disponible   |  157 092€ | Voir | 
| Voir | Disponible  |  158 028€ | C1112 | Appt. | Studio | 18.7m2 | 11ème |   Disponible   |  158 028€ | Voir | 
| Voir | Disponible  |  158 652€ | C1311 | Appt. | Studio | 18.6m2 | 13ème |   Disponible   |  158 652€ | Voir | 
| Voir | Disponible  |  158 652€ | C1310 | Appt. | Studio | 18.6m2 | 13ème |   Disponible   |  158 652€ | Voir | 
| Voir | Disponible  |  158 652€ | C1309 | Appt. | Studio | 18.6m2 | 13ème |   Disponible   |  158 652€ | Voir | 
| Voir | Disponible  |  158 652€ | C1308 | Appt. | Studio | 18.6m2 | 13ème |   Disponible   |  158 652€ | Voir | 
| Voir | Disponible  |  158 652€ | C1307 | Appt. | Studio | 18.6m2 | 13ème |   Disponible   |  158 652€ | Voir | 
| Voir | Disponible  |  158 652€ | C1306 | Appt. | Studio | 18.6m2 | 13ème |   Disponible   |  158 652€ | Voir | 
| Voir | Disponible  |  158 652€ | C1305 | Appt. | Studio | 18.6m2 | 13ème |   Disponible   |  158 652€ | Voir | 
| Voir | Disponible  |  158 652€ | C227 | Appt. | Studio | 19.8m2 | 2ème |   Disponible   |  158 652€ | Voir | 
| Voir | Disponible  |  159 588€ | C1020 | Appt. | Studio | 18.4m2 | 10ème |   Disponible   |  159 588€ | Voir | 
| Voir | Disponible  |  160 212€ | C427 | Appt. | Studio | 19.8m2 | 4ème |   Disponible   |  160 212€ | Voir | 
| Voir | Disponible  |  161 148€ | C1220 | Appt. | Studio | 18.4m2 | 12ème |   Disponible   |  161 148€ | Voir | 
| Voir | Disponible  |  161 148€ | C1023 | Appt. | Studio | 18.6m2 | 10ème |   Disponible   |  161 148€ | Voir | 
| Voir | Disponible  |  161 148€ | C1022 | Appt. | Studio | 18.6m2 | 10ème |   Disponible   |  161 148€ | Voir | 
| Voir | Disponible  |  161 148€ | C1021 | Appt. | Studio | 18.6m2 | 10ème |   Disponible   |  161 148€ | Voir | 
| Voir | Disponible  |  161 148€ | C1019 | Appt. | Studio | 18.6m2 | 10ème |   Disponible   |  161 148€ | Voir | 
| Voir | Disponible  |  161 148€ | C1018 | Appt. | Studio | 18.6m2 | 10ème |   Disponible   |  161 148€ | Voir | 
| Voir | Disponible  |  161 148€ | C1016 | Appt. | Studio | 18.6m2 | 10ème |   Disponible   |  161 148€ | Voir | 
| Voir | Disponible  |  161 148€ | C1015 | Appt. | Studio | 18.6m2 | 10ème |   Disponible   |  161 148€ | Voir | 
| Voir | Disponible  |  161 148€ | C1002 | Appt. | Studio | 18.6m2 | 10ème |   Disponible   |  161 148€ | Voir | 
| Voir | Disponible  |  162 696€ | C1219 | Appt. | Studio | 18.6m2 | 12ème |   Disponible   |  162 696€ | Voir | 
| Voir | Disponible  |  162 696€ | C1218 | Appt. | Studio | 18.6m2 | 12ème |   Disponible   |  162 696€ | Voir | 
| Voir | Disponible  |  162 696€ | C1217 | Appt. | Studio | 18.6m2 | 12ème |   Disponible   |  162 696€ | Voir | 
| Voir | Disponible  |  162 696€ | C1216 | Appt. | Studio | 18.6m2 | 12ème |   Disponible   |  162 696€ | Voir | 
| Voir | Disponible  |  162 696€ | C1215 | Appt. | Studio | 18.6m2 | 12ème |   Disponible   |  162 696€ | Voir | 
| Voir | Disponible  |  162 696€ | C1202 | Appt. | Studio | 18.6m2 | 12ème |   Disponible   |  162 696€ | Voir | 
| Voir | Disponible  |  162 696€ | C1201 | Appt. | Studio | 18.6m2 | 12ème |   Disponible   |  162 696€ | Voir | 
| Voir | Disponible  |  164 256€ | C113 | Appt. | Studio | 20.4m2 | 1er |   Disponible   |  164 256€ | Voir | 
| Voir | Disponible  |  165 816€ | C313 | Appt. | Studio | 20.4m2 | 3ème |   Disponible   |  165 816€ | Voir | 
| Voir | Disponible  |  167 376€ | C513 | Appt. | Studio | 20.4m2 | 5ème |   Disponible   |  167 376€ | Voir | 
| Voir | Disponible  |  168 936€ | C713 | Appt. | Studio | 20.4m2 | 7ème |   Disponible   |  168 936€ | Voir | 
| Voir | Disponible  |  170 808€ | C913 | Appt. | Studio | 20.4m2 | 9ème |   Disponible   |  170 808€ | Voir | 
| Voir | Disponible  |  172 368€ | C1113 | Appt. | Studio | 20.4m2 | 11ème |   Disponible   |  172 368€ | Voir | 
| Voir | Disponible  |  173 928€ | C1313 | Appt. | Studio | 20.4m2 | 13ème |   Disponible   |  173 928€ | Voir | 
| Voir | Disponible  |  189 816€ | C1203 | Appt. | Studio | 21.9m2 | 12ème |   Disponible   |  189 816€ | Voir | 
| Voir | Disponible  |  191 376€ | C904 | Appt. | Studio | 24.9m2 | 9ème |   Disponible   |  191 376€ | Voir | 
| Voir | Disponible  |  193 248€ | C1104 | Appt. | Studio | 24.9m2 | 11ème |   Disponible   |  193 248€ | Voir | 
| Voir | Disponible  |  195 120€ | C1304 | Appt. | Studio | 24.9m2 | 13ème |   Disponible   |  195 120€ | Voir | 
| Voir | Disponible  |  208 836€ | C114 | Appt. | Studio | 30.8m2 | 1er |   Disponible   |  208 836€ | Voir | 
| Voir | Disponible  |  211 008€ | C314 | Appt. | Studio | 30.8m2 | 3ème |   Disponible   |  211 008€ | Voir | 
| Voir | Disponible  |  212 880€ | C514 | Appt. | Studio | 30.8m2 | 5ème |   Disponible   |  212 880€ | Voir | 
| Voir | Disponible  |  215 064€ | C714 | Appt. | Studio | 30.8m2 | 7ème |   Disponible   |  215 064€ | Voir | 
| Voir | Disponible  |  217 248€ | C914 | Appt. | Studio | 30.8m2 | 9ème |   Disponible   |  217 248€ | Voir | 
| Voir | Disponible  |  219 120€ | C1114 | Appt. | Studio | 30.8m2 | 11ème |   Disponible   |  219 120€ | Voir | 
| Voir | Disponible  |  150 540€ | C208 | Appt. | Studio | 18.6m2 | 2ème |   Disponible   |  150 540€ | Voir | 
| Voir | Disponible  |  152 724€ | C318 | Appt. | Studio | 18.6m2 | 3ème |   Disponible   |  152 724€ | Voir | 
| Voir | Disponible  |  152 724€ | C317 | Appt. | Studio | 18.6m2 | 3ème |   Disponible   |  152 724€ | Voir | 
| Voir | Disponible  |  154 908€ | C624 | Appt. | Studio | 18.6m2 | 6ème |   Disponible   |  154 908€ | Voir |