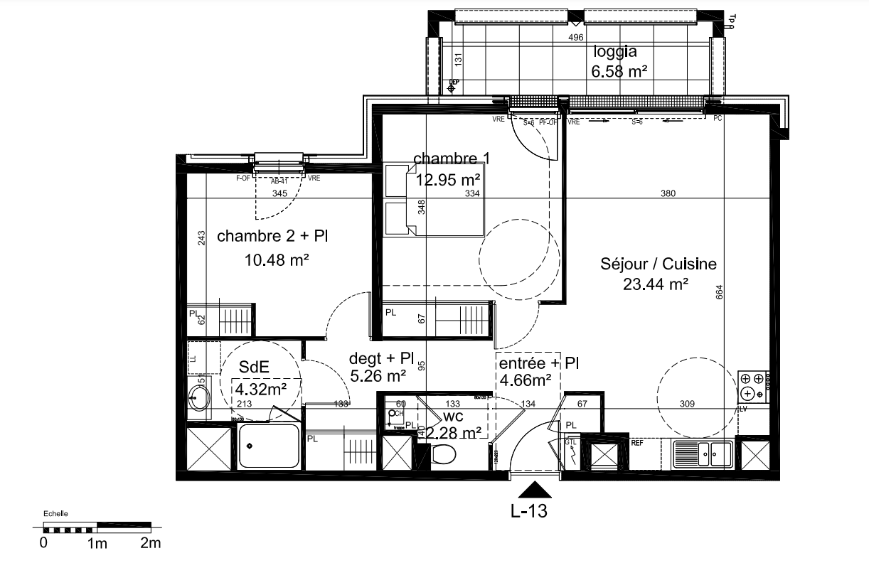
377 400€
Appt. au 0-RDC
T3
63.75 m²
Ouest
Dinard (35800)
1er trimestre 2026
01 81 80 39 10
Présentation du programme "ART DECO"
Située sur la Côte d'Emeraude, Dinard est une station balnéaire très prisée pour son littoral, ses plages de sable fin, son casino, ses galeries d'art, ses villas Belle Epoque et beaux hôtels. Le festival du film britannique, qui se déroule chaque année, permet de faire rayonner la ville à l'échelle internationale. Avec le TGV, l'aéroport et les ferrys à quelques minutes, l'évasion vers la capitale ou les destinations plus lointaines est facile et sans contraintes. Répartie sur 3 bâtiments, la résidence "ART DECO", située à quelques minutes des halles, du centre-ville et du bord de mer, comprendra 68 logements prolongés d'une terrasse, d'un balcon ou d'une loggia. Ce nouveau quartier de grand standing (site de l'ancienne gare) permet de tout faire à pied et de rejoindre sans contraintes les halles, la plage, le marché, les commerces. Les logements, à la géométrie travaillée, constituent un rappel des grandes villas, témoins incontournables de l'architecture balnéaire dinardaise. Volumétries, articulations en plans et en façades, grandes baies vitrées, bow-windows, frontons ou corniches, balcons et loggias sont autant d'éléments à souligner. L'ensemble des stationnements est situé en sous-sol avec accès sécurisé. Le programme propose des prestations de qualité : - Carrelage grand format dans les pièces de vie - Parquet contrecollé dans les chambres - Placards équipés - Salles de bains et salles d'eau : meuble-vasque avec panneau miroir et applique, sèche-serviettes et pare-douche - Volets roulants électriques sur toutes les fenêtres - Terrasses, balcons ou loggias - Halls d'entrée à double contrôle : clés électroniques et vidéophone - Ascenseur desservant tous les niveaux - Porte palière avec serrure de sûreté 3 points
Autres logements T3 du programme "ART DECO"
| Disponibilité | Prix | No | Genre | Pièces | Surface | Étage | Disponibilité | Prix | ||
|---|---|---|---|---|---|---|---|---|---|---|
| Voir | Disponible | 401 200€ | K14 | Appt. | T3 | 66.99m2 | 0-RDC | Disponible | 401 200€ | Voir |
| Voir | Disponible | 406 700€ | K24 | Appt. | T3 | 66.99m2 | 0-RDC | Disponible | 406 700€ | Voir |
| Voir | Disponible | 408 000€ | K34 | Appt. | T3 | 66.99m2 | 0-RDC | Disponible | 408 000€ | Voir |
| Voir | Disponible | 378 200€ | L11 | Appt. | T3 | 62.97m2 | 0-RDC | Disponible | 378 200€ | Voir |
| Voir | Disponible | 388 000€ | L14 | Appt. | T3 | 63.58m2 | 0-RDC | Disponible | 388 000€ | Voir |
| Voir | Disponible | 398 500€ | L21 | Appt. | T3 | 62.97m2 | 0-RDC | Disponible | 398 500€ | Voir |
| Voir | Disponible | 380 700€ | L23 | Appt. | T3 | 63.75m2 | 0-RDC | Disponible | 380 700€ | Voir |
| Voir | Disponible | 391 300€ | L24 | Appt. | T3 | 63.58m2 | 0-RDC | Disponible | 391 300€ | Voir |
| Voir | Disponible | 384 700€ | L31 | Appt. | T3 | 62.97m2 | 0-RDC | Disponible | 384 700€ | Voir |
| Voir | Disponible | 411 500€ | K44 | Appt. | T3 | 66.99m2 | 0-RDC | Disponible | 411 500€ | Voir |
| Voir | Disponible | 383 900€ | L33 | Appt. | T3 | 63.75m2 | 0-RDC | Disponible | 383 900€ | Voir |
| Voir | Disponible | 394 500€ | L34 | Appt. | T3 | 63.58m2 | 0-RDC | Disponible | 394 500€ | Voir |