277 400€
Appt. au 0-RDC
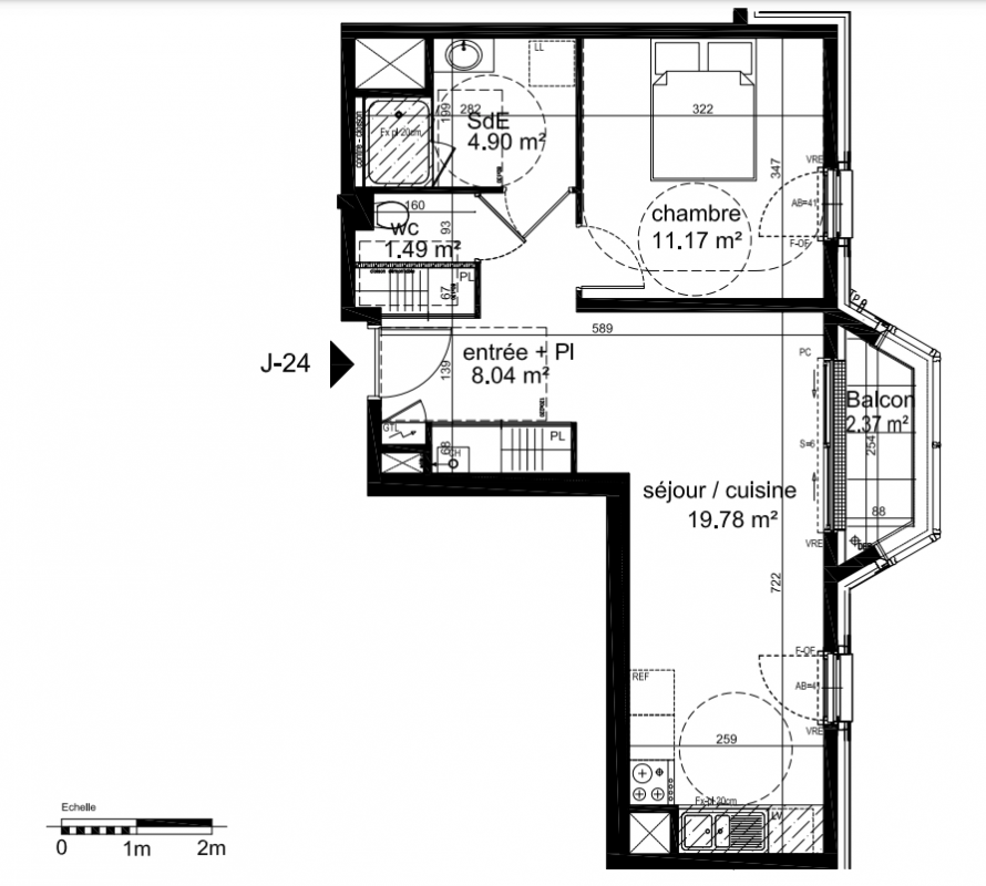
T2
45.75 m²
Nord
Dinard (35800)
1er trimestre 2026
01 81 80 39 10
Présentation du programme "ART DECO"
Située sur la Côte d'Emeraude, Dinard est une station balnéaire très prisée pour son littoral, ses plages de sable fin, son casino, ses galeries d'art, ses villas Belle Epoque et beaux hôtels. Le festival du film britannique, qui se déroule chaque année, permet de faire rayonner la ville à l'échelle internationale. Avec le TGV, l'aéroport et les ferrys à quelques minutes, l'évasion vers la capitale ou les destinations plus lointaines est facile et sans contraintes. Répartie sur 3 bâtiments, la résidence "ART DECO", située à quelques minutes des halles, du centre-ville et du bord de mer, comprendra 68 logements prolongés d'une terrasse, d'un balcon ou d'une loggia. Ce nouveau quartier de grand standing (site de l'ancienne gare) permet de tout faire à pied et de rejoindre sans contraintes les halles, la plage, le marché, les commerces. Les logements, à la géométrie travaillée, constituent un rappel des grandes villas, témoins incontournables de l'architecture balnéaire dinardaise. Volumétries, articulations en plans et en façades, grandes baies vitrées, bow-windows, frontons ou corniches, balcons et loggias sont autant d'éléments à souligner. L'ensemble des stationnements est situé en sous-sol avec accès sécurisé. Le programme propose des prestations de qualité : - Carrelage grand format dans les pièces de vie - Parquet contrecollé dans les chambres - Placards équipés - Salles de bains et salles d'eau : meuble-vasque avec panneau miroir et applique, sèche-serviettes et pare-douche - Volets roulants électriques sur toutes les fenêtres - Terrasses, balcons ou loggias - Halls d'entrée à double contrôle : clés électroniques et vidéophone - Ascenseur desservant tous les niveaux - Porte palière avec serrure de sûreté 3 points
Autres logements T2 du programme "ART DECO"
| Disponibilité | Prix | No | Genre | Pièces | Surface | Étage | Disponibilité | Prix | ||
|---|---|---|---|---|---|---|---|---|---|---|
| Voir | Optionné | 273 800€ | L15 | Appt. | T2 | 44.57m2 | 0-RDC | Optionné Mais pas encore vendu 😉 | 273 800€ | Voir |
| Voir | Disponible | 290 900€ | L16 | Appt. | T2 | 47.9m2 | 0-RDC | Disponible | 290 900€ | Voir |
| Voir | Optionné | 273 800€ | L32 | Appt. | T2 | 43.6m2 | 0-RDC | Optionné Mais pas encore vendu 😉 | 273 800€ | Voir |
| Voir | Disponible | 275 000€ | J14 | Appt. | T2 | 45.75m2 | 0-RDC | Disponible | 275 000€ | Voir |
| Voir | Disponible | 279 600€ | J34 | Appt. | T2 | 45.75m2 | 0-RDC | Disponible | 279 600€ | Voir |