383 318€ (TVA 20%)
337 000€ (TVA 5.5%)
Appt. au 2ème
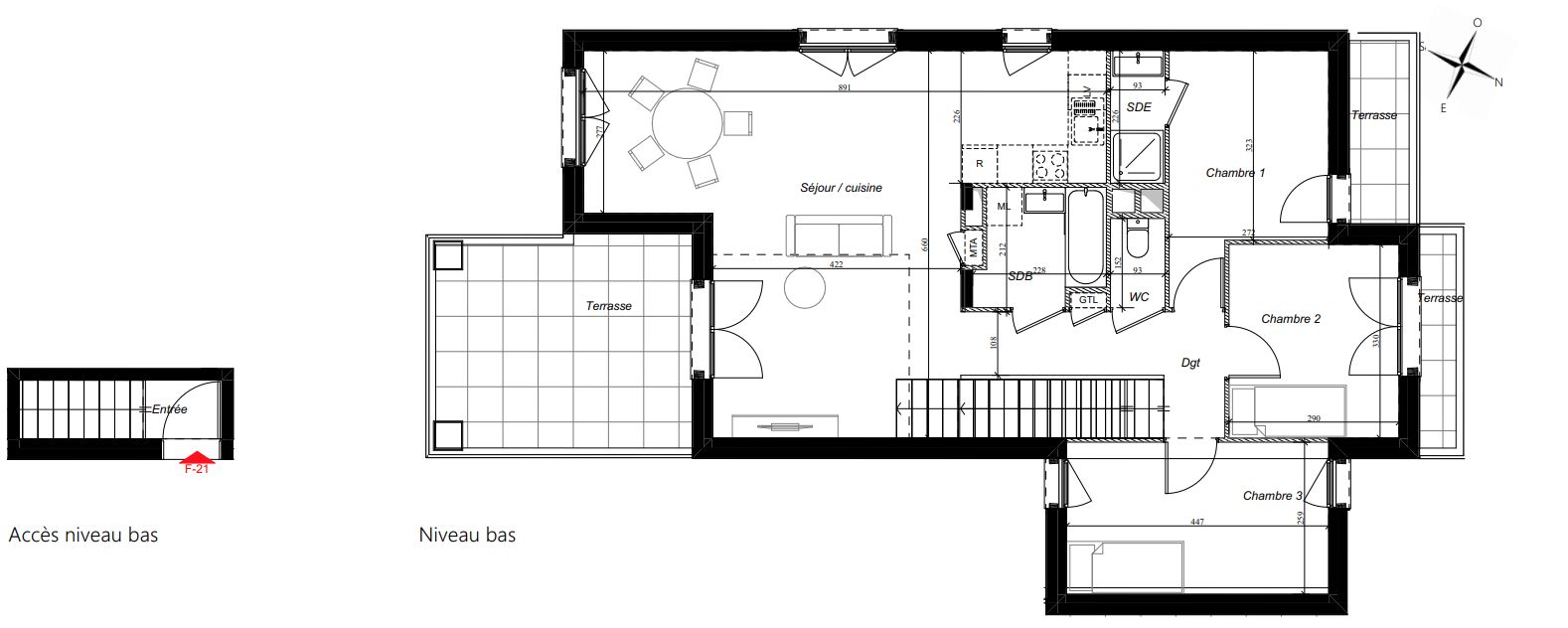
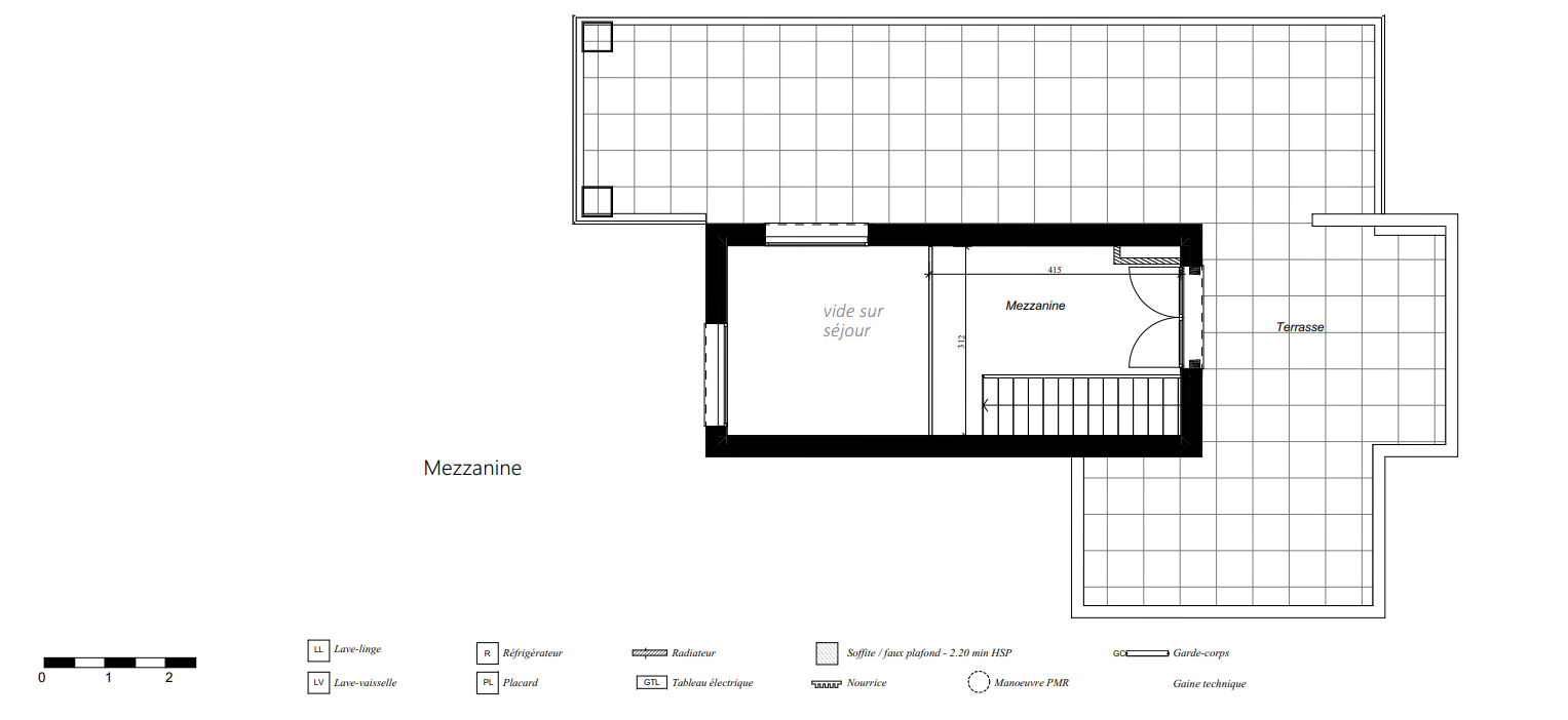
T4
93.21 m²
-
Rillieux-la-Pape (69140)
1er trimestre 2026
01 81 80 39 10
Présentation du programme "1ères LOGES"
1ères LOGES est un programme immobilier qui offre à la vente 9 logements neufs, disponibles à partir de 335 000 euros.Imaginez de belles terrasses plein sud ornées de magnifiques tonnelles végétalisées, et laissez-vous emporter par le panorama majestueux sur le grand paysage… L’appel de la forêt de Sermenaz en lisière du programme invitait tout naturellement à imaginer un volet paysager luxuriant. La végétation, tantôt fleurie, tantôt boisée, dessinera quantité de tableaux à admirer tout au long de l’année. Du 2 au 5 pièces, les appartements se déclinent au gré de vos envies, jusqu’au duplex avec accès indépendant à votre roof-top. À l’intérieur, comme à l’extérieur, nature et lumière tiennent le premier rôle grâce à une double exposition et aux larges baies vitrées ouvertes sur les magnifiques extérieurs. Dotés de volumes généreux, les intérieurs se distinguent par des aménagements confortables étudiés pour faciliter vos gestes du quotidien. Adapté aux modes de vie actuels, le coin télétravail prend aisément sa place dans le salon et les cuisines peuvent être fermées.

