Ce lot n’est plus disponible chez VIANOVA ou est vendu.
Vous pouvez revenir dans 24h pour vérifier le stock à jour ou contacter un conseiller Vianova pour vérifier le stock en direct.
Vous pouvez également continuer votre recherche sur notre site « ici ».
597 500€
Appt. au 3ème
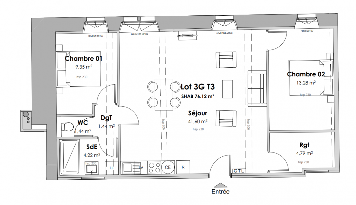
T3
76.12 m²
-
Clermont-Ferrand (63000)
1er trimestre 2024
01 81 80 39 10
Présentation du programme ": La Maison Du Bon-pasteur"
Un havre de paix en coeur de villeC'est un monument historique de la ville, bien connu des Montferrandais. Typique de l’architecture locale, avec ses formes régulières, une sobre élégance et bien sûr la pierre noire de Volvic, omniprésente. Il fut édifié à partir de 1623 par la Congrégation des Ursulines, avec pour vocation l’éducation des jeunes filles. Repris au XIXe siècle par les soeurs de Saint-Joseph, il prendra le nom de Maison du Bon Pasteur. Poussez la lourde porte de la Maison, un monde à part s'ouvre à vous. Un îlot de sérénité, authentique et précieux, préservé des bruits de la ville, où la nature a toute sa place et le temps semble s’être arrêté. Elle conjugue les atouts d’une architecture fonctionnelle, pure et le charme d’un édifice patrimonial unique : plafonds peints et escalier bois classés aux monuments historiques, cloître avec galeries, dallages en pierre,parquets bois, cheminées, moulures …Clermont-Ferrand, un territoire d'équilibre et de progrèsExactement au centre de la France, au coeur de la 1re région industrielle - Auvergne-Rhône-Alpes, la métropole de Clermont-Ferrand parvient à conjuguer l’attractivité d’un territoire entreprenant et innovant avec une qualité de vie rare, portée par un environnement naturel exceptionnel, aux portes de la Chaîne des Puys, classée au patrimoine mondial de l’UNESCO. Elle a su bâtir un tissu économique dense et dynamique comptant, aux côtés de grands groupes industriels, des PME pointues et des startups audacieuses dans les biotechnologies, la mécanique… Elle est aussi terre de création et de culture, avec notamment le plusgrand festival de court-métrage au monde. Les étudiants ne s’y sont pas trompés. Ils sont toujours plus nombreux à la choisir.
Autres logements T3 du programme ": La Maison Du Bon-pasteur"
| Disponibilité | Prix | No | Genre | Pièces | Surface | Étage | Disponibilité | Prix | ||
|---|---|---|---|---|---|---|---|---|---|---|
| Voir | Archivé | 446 000€ | 2B | Appt. | T3 | 51.87m2 | 2ème | Archivé | 446 000€ | Voir |
| Voir | Archivé | 456 000€ | 2L | Appt. | T3 | 52.35m2 | 2ème | Archivé | 456 000€ | Voir |
| Voir | Archivé | 503 500€ | 3S | Appt. | T3 | 55.14m2 | 3ème | Archivé | 503 500€ | Voir |
| Voir | Archivé | 552 500€ | 1O | Appt. | T3 | 63.97m2 | 1er | Archivé | 552 500€ | Voir |
| Voir | Archivé | 556 000€ | 3H | Appt. | T3 | 64.04m2 | 3ème | Archivé | 556 000€ | Voir |
| Voir | Archivé | 593 000€ | 3C | Appt. | T3 | 68.11m2 | 3ème | Archivé | 593 000€ | Voir |
| Voir | Archivé | 635 000€ | 2N | Appt. | T3 | 84.55m2 | 2ème | Archivé | 635 000€ | Voir |