Prix
307 900€
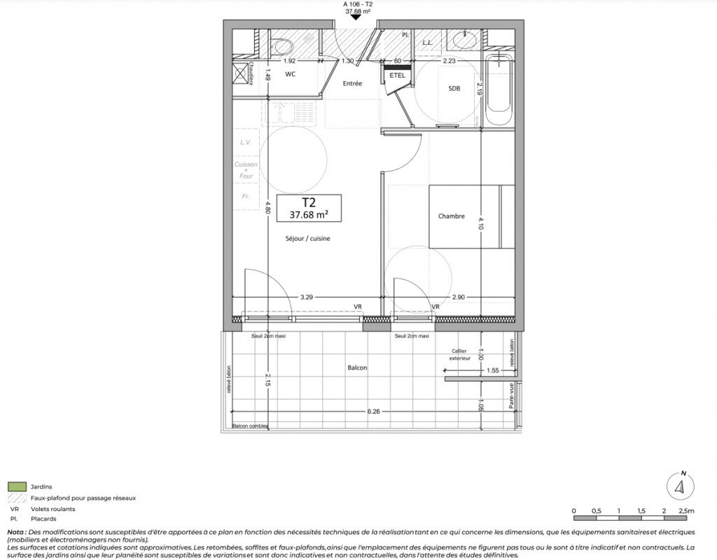
Type
Appt. au 1er
Pièces
T2
Surface
37.68 m²
Exposition
-
Ville
Duingt (74410)
Livraison
1er trimestre 2024
Informations
01 81 80 39 10

Présentation du programme "PERLE DU LAC"

À proximité des commerces, des écoles, des plages et de la voie verte, chaque logement s'ouvre sur un balcon, une terrasse ou un jardin privatif. Certains appartements offrent des vues dégagées sur la montagne, dans un cadre naturel entre lac et reliefs.

Autres logements T2 du programme "PERLE DU LAC"

Disponibilité Prix Genre Pièces Surface Étage
Voir
Disponible
317 900€ Appt. T2 39.78m2 1er
Voir
Disponible
319 900€ Appt. T2 40.14m2 1er
Voir
Disponible
327 900€ Appt. T2 43.63m2 0-RDC
DO NOT CLICK