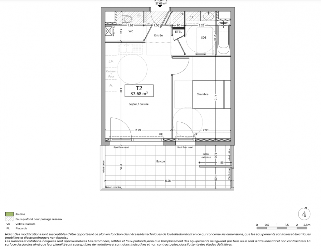
307 900€
Appt. au 1er
T2
37.68 m²
-
Duingt (74410)
1er trimestre 2024
01 81 80 39 10
Présentation du programme "LA PERLE DU LAC"
Programme neuf à forte valeur patrimoniale - Lac d'Annecy Implantée sur la commune très recherchée de Duingt, en première couronne du lac d'Annecy, la résidence L'Écrin s'inscrit dans un secteur à offre foncière extrêmement contrainte, garantissant une rareté durable et une forte résilience des valeurs. La résidence se compose de 27 appartements seulement, du 2 au 4 pièces, dont 4 logements en Bail Réel Solidaire, tous prolongés par balcon, terrasse ou jardin privatif. Une typologie cohérente avec la demande locale, les résidences secondaires et les acquisitions patrimoniales long terme. Fondamentaux patrimoniaux : - Commune lacustre premium, réputée pour sa qualité de vie et sa faible rotation immobilière - Marché structurellement sous-offreur, forte pression de la demande locale et secondaire - Double attractivité : résidence principale haut de gamme et résidence secondaire - Proximité immédiate d'Annecy, accès rapide Albertville, Genève et stations de ski Produit immobilier : - Résidence intimiste à taille humaine - Architecture soignée, inspirée de l'esprit savoyard contemporain - Prestations qualitatives et durables - Conformité réglementaire et performance énergétique maîtrisée - Stationnements privatifs et box fermés Arguments investisseurs / CGP : - Placement patrimonial sécurisé sur un secteur prime - Valorisation long terme liée à la rareté foncière - Forte liquidité à la revente - Potentiel locatif saisonnier ou meublé selon profil acquéreur - Produit adapté à une clientèle CSP+ en recherche de sens, de cadre et de qualité d'usage Cible : - Accédants locaux et frontaliers - Profils CSP+ en résidence principale - Investisseurs patrimoniaux long terme - Résidences secondaires haut de gamme
Autres logements T2 du programme "LA PERLE DU LAC"
| Disponibilité | Prix | No | Genre | Pièces | Surface | Étage | Disponibilité | Prix | ||
|---|---|---|---|---|---|---|---|---|---|---|
| Voir | Disponible | 301 500€ | B003 | Appt. | T2 | 39.26m2 | 0-RDC | Disponible | 301 500€ | Voir |
| Voir | Disponible | 317 900€ | B103 | Appt. | T2 | 39.78m2 | 1er | Disponible | 317 900€ | Voir |
| Voir | Disponible | 319 900€ | A103 | Appt. | T2 | 40.14m2 | 1er | Disponible | 319 900€ | Voir |
| Voir | Disponible | 305 000€ | B101 | Appt. | T2 | 40.68m2 | 1er | Disponible | 305 000€ | Voir |
| Voir | Disponible | 303 400€ | A202 | Appt. | T2 | 42.96m2 | 2ème | Disponible | 303 400€ | Voir |
| Voir | Disponible | 327 900€ | B001 | Appt. | T2 | 43.63m2 | 0-RDC | Disponible | 327 900€ | Voir |