180 853€ (TVA 20%)
159 000€ (TVA 5.5%)
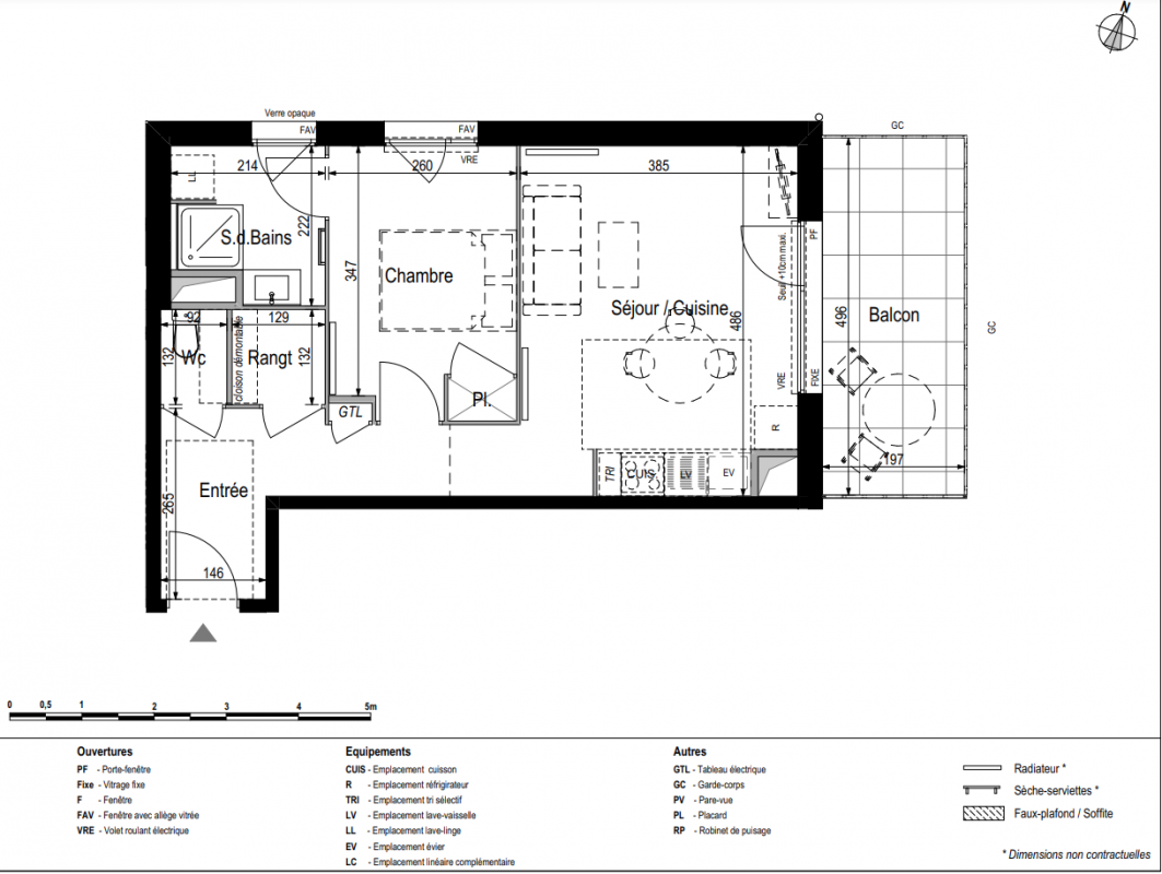
Appt. au 2ème
T2
42.5 m²
Nord
Ambérieu-en-Bugey (01500)
2ème trimestre 2028
01 81 80 39 10
Présentation du programme "LES JADES"
Découvrez votre futur chez-vous au cœur d'Ambérieu-en-Bugey : un programme immobilier alliant confort, modernité et accessibilité.
Située à seulement 30 minutes de Lyon et au carrefour des grandes voies de communication, Ambérieu-en-Bugey est une ville dynamique, en pleine croissance, offrant un cadre de vie paisible tout en bénéficiant des avantages d'une grande agglomération.
Notre nouveau programme immobilier vous propose des appartements modernes, lumineux et pensés pour votre bien-être au quotidien. Avec des prestations de qualité, des espaces optimisés, et un environnement verdoyant, vous trouverez ici le lieu idéal pour investir ou poser vos valises.
À proximité immédiate des commerces, écoles, transports et services, vous profiterez d’une accessibilité parfaite tout en étant au cœur d’un cadre naturel préservé. Que vous soyez un primo-accédant, une famille en quête de confort ou un investisseur, notre programme est conçu pour répondre à toutes vos attentes.
Ne manquez pas cette opportunité unique d'intégrer un cadre de vie agréable. Venez découvrir votre futur chez-vous à Ambérieu-en-Bugey !
Prenez contact dès à présent avec notre équipe commerciale !
Autres logements T2 du programme "LES JADES"
| Disponibilité | Prix | No | Genre | Pièces | Surface | Étage | Disponibilité | Prix | ||
|---|---|---|---|---|---|---|---|---|---|---|
| Voir | Disponible | 175 166€ | A102 | Appt. | T2 | 42.5m2 | 1er | Disponible | 175 166€ | Voir |
| Voir | Disponible | 144 105€ | A201 | Appt. | T2 | 39.5m2 | 2ème | Disponible | 144 105€ | Voir |
| Voir | Disponible | 175 166€ | A206 | Appt. | T2 | 44.25m2 | 2ème | Disponible | 175 166€ | Voir |
| Voir | Disponible | 158 104€ | B005 | Appt. | T2 | 40.4m2 | 0-RDC | Disponible | 158 104€ | Voir |
| Voir | Disponible | 163 791€ | B106 | Appt. | T2 | 40.4m2 | 1er | Disponible | 163 791€ | Voir |
| Voir | Disponible | 186 540€ | C301 | Appt. | T2 | 42.65m2 | 3ème | Disponible | 186 540€ | Voir |
| Voir | Disponible | 186 540€ | C304 | Appt. | T2 | 45.9m2 | 3ème | Disponible | 186 540€ | Voir |
| Voir | Disponible | 146 730€ | A001 | Appt. | T2 | 38.75m2 | 0-RDC | Disponible | 146 730€ | Voir |
| Voir | Disponible | 169 479€ | A106 | Appt. | T2 | 44.25m2 | 1er | Disponible | 169 479€ | Voir |
| Voir | Disponible | 180 853€ | C201 PMR | Appt. | T2 | 43.15m2 | 2ème | Disponible | 180 853€ | Voir |